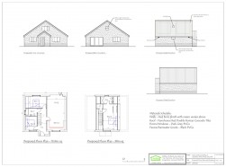
GARAGE / STORAGE Plot For Sale

Bristol Road, Churchill, BS25
Asking Price Of £155,000
Bristol Road, Churchill, BS25
Bristol Road, Churchill, BS25
Bristol Road, Churchill, BS25
Bristol Road, Churchill, BS25
Bristol Road, Churchill, BS25
Bristol Road, Churchill, BS25

To discuss this property call our friendly team

01934 876226

or Book a viewing
SAVE TO SHORTLIST REMOVE FROM SHORTLIST

Market your property
with Robin King Estate Agents

Book a market appraisal for your property today.

Property Search

Show Sold STC
Show Let Agreed